JavaScriptを有効にしてください
当サイトではJavaScriptを使用しています。一部機能が使えなかったり表示が乱れる恐れがあります。
第27回 2023年
第26回 2022年
第25回 2021年
第24回 2020年
第23回 2019年
第22回 2018年
第21回 2017年
第20回 2016年
第19回 2015年
第18回 2014年
第17回 2013年
第16回 2012年
第15回 2011年
第14回 2010年
第13回 2009年
第12回 2008年
第11回 2007年
第10回 2006年
第9回 2005年
第8回 2004年
第7回 2003年
第6回 2002年
第5回 2001年
第4回 2000年
第3回 1999年
第2回 1998年
第1回 1997年
鳥取県
島根県
岡山県
広島県
山口県
その他
第1回〜第10回
第11回
第12〜23回
第24回
第25〜26回
第27回
第27回 2023年
第26回 2022年
第25回 2021年
第24回 2020年
第23回 2019年
第22回 2018年
第21回 2017年
第20回 2016年
藤本 茂生
株式会社美建築設計事務所
作品名 / 「西宇部の家」
●
設計/株式会社美建築設計事務所
●
施工/新光産業株式会社
●
竣工日/平成17年9月25日
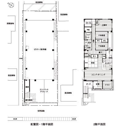
■建物概要
●
建設地/山口県宇部市大字際波
●
敷地面積/283.68m
2
●
建築面積/168.18m
2
●
延床面積/291.65m
2
●
構造・規模/鉄骨造一部鉄筋コンクリート造
■設備面の特記
●厨房機器
・IHクッキングヒーター/日立ハウステック HTW-4GE
・システムキッチン/日立ハウステック エクセリアL
●給湯機器
・エコキュート/日立ハウステック HHP-371HAT HHP-PL45C
●冷暖房機器
・ルームエアコン/ダイキン工業 S50FCV(天井カセット) S50TCV(壁埋込)
■その他設備面の特記
・外壁通気工法 断熱材:床下/ポリスチレンフォーム3種b 壁・天井/グラスウール24k
■設計コンセプト
敷地は細長い形状で、狭い道路と路地に面した住宅密集地の中にある。道路の向かいには旅館があり、プライバシーを確保しにくい環境となっている。
日常における「生活のしやすさ」と「家族のふれあい」について十分検討した結果、居住空間を1フロアーにまとめ、動線を単純化する計画とした。常時4台+1台の駐車スペースの確保という条件のなか、防犯性を向上させると共に自然通風・採光を確保するため、1階をピロティとして開放的な駐車場とし、居住空間を2階にまとめた計画としている。
建物は狭い道路に対して圧迫感を軽減するために居住空間を可能な限りセットバックした配置計画としている。2階の玄関へ導く階段と宙に浮いた居住空間に囲まれたアプローチ空間は、周辺環境にゆとりを与えると同時に、この建物のシンボルとなっている。
LDKは明るく広々とした印象を与えるため、和室を含め1つの空間としてまとめている。またクライアントのプライバシーを確保するため、道路側にダイニングの延長としてテラスを配置している。このテラスをアルミルーバーで囲うことにより、道路向かいの旅館や通行人及び隣接する建物からの視線を遮りながらも通風と採光を確保することが可能となっている。
■寸評
住宅密集地で狭小間口の細長い敷地に明るく風通しの良い住まいをいかに作るか。結果として、テラス、バルコニー、坪庭の活用が上手く功を奏しているといえます。アプローチ空間の巧さが外観を引き立たせております。
Copyrights(C)「エネルギア住宅作品コンテスト事務局」 All Rights Reserved.